Villa · New Build Benissa · Ref. BACK-94256

2.995.000€
Price per m2 6.539€/m2

Villa · New Build Benissa · Ref. BACK-94256

Description

Price per m2 6.539€/m2
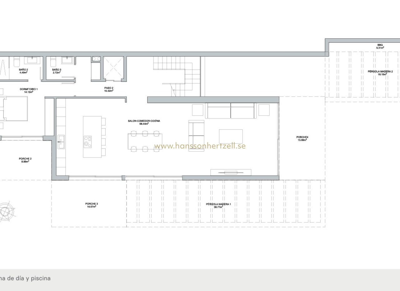
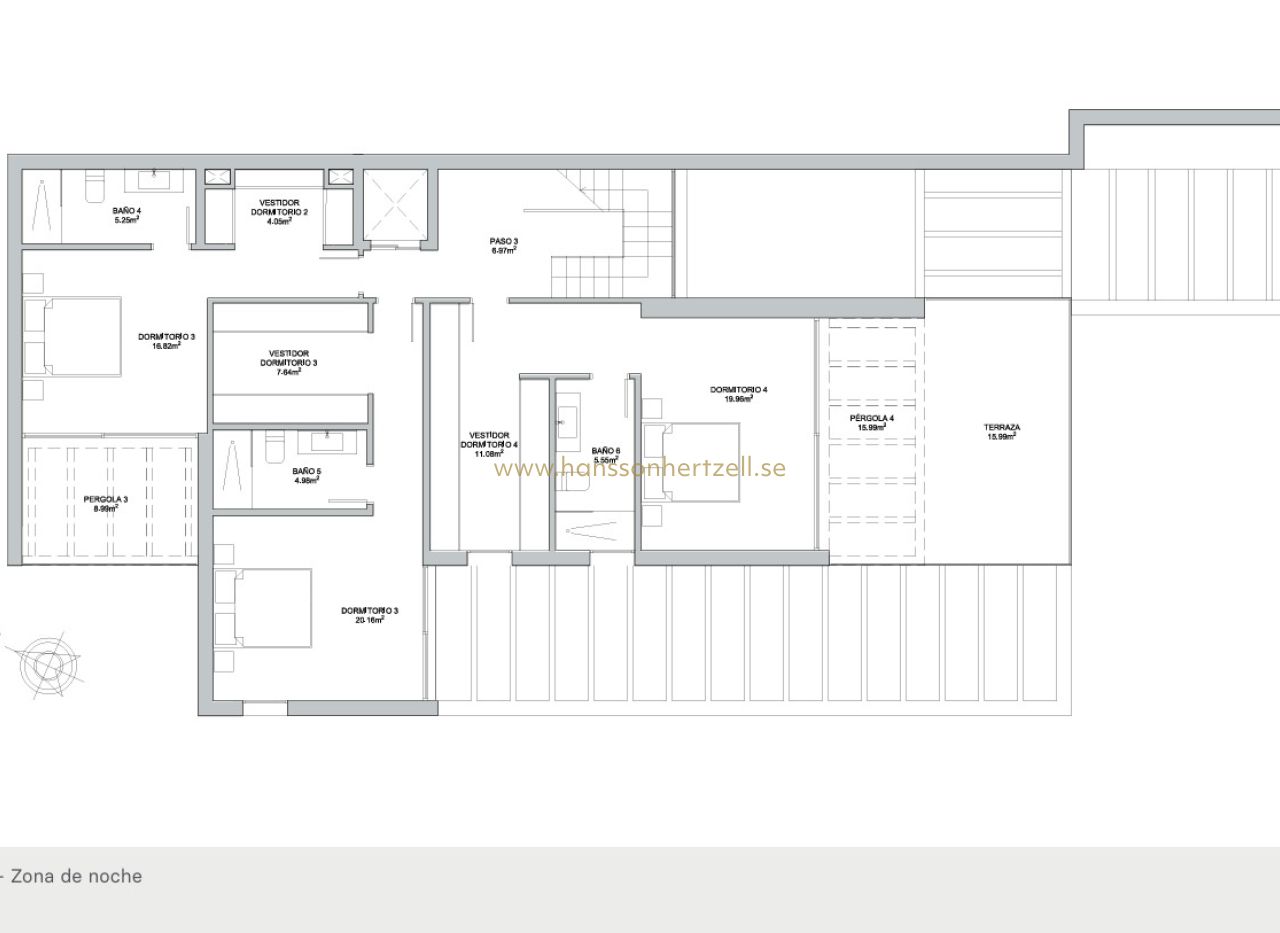
Built 458m2
Plot 1.500m2
Bedrooms 4
Bathrooms 4
Pool Yes

This new build villa will be built on a spacious 1500 m2 plot in the luxurious Raco de Galeno urbanisation 2 km from the beautiful coast of Benissa. The villa has a total built area of 459 m2 distributed over two floors + a basement with a double garage. The ground floor comprises a spacious living-dining room with a modern, open-plan kitchen, a bedroom with an en suite bathroom and private terrace and a guest toilet. On the upper floor there are three more luxurious bedrooms, each with an en suite bathroom and dressing room. One bedroom has access to a private terrace through sliding windows and the other two bedrooms share a very spacious terrace. The basement comprises a garage with parking space for two cars, an entrance hall and a guest toilet. Outside, there is a swimming pool surrounded by several terraces both covered and uncovered. The villa has a spacious driveway with access to the garage. A pre-installation for pool heating and a pre-installation for an alarm system will be installed. The air conditioning system being installed is the AEROTHERMIA system for heating and cooling and underfloor heating throughout the house with AIRZONE system. The project already has a licence and can be built in one year.

Features

Bedrooms: 4
Bathrooms: 4
Built: 458m2
Plot: 1.500m2
Pool: Yes
Kitchen: 0
Garage
Air Conditioning
lift
Automatic gate
Automatic irrigation
Double glazing
Built-in cabinets

We offer digital viewings!

Digital viewings make it possible to conveniently meet the broker and get a viewing of the home directly on the mobile.

Location

Make an enquiry

Responsable del tratamiento: Hansson & Hertzell Invest S.L., Finalidad del tratamiento: Gestión y control de los servicios ofrecidos a través de la página Web de Servicios inmobiliarios, Envío de información a traves de newsletter y otros, Legitimación: Por consentimiento, Destinatarios: No se cederan los datos, salvo para elaborar contabilidad, Derechos de las personas interesadas: Acceder, rectificar y suprimir los datos, solicitar la portabilidad de los mismos, oponerse al tratamiento y solicitar la limitación de éste, Procedencia de los datos: El Propio interesado, Información Adicional: Puede consultarse la información adicional y detallada sobre protección de datos Aquí.

Similar Properties

WhatsApp
Ring mig om denna fastighet