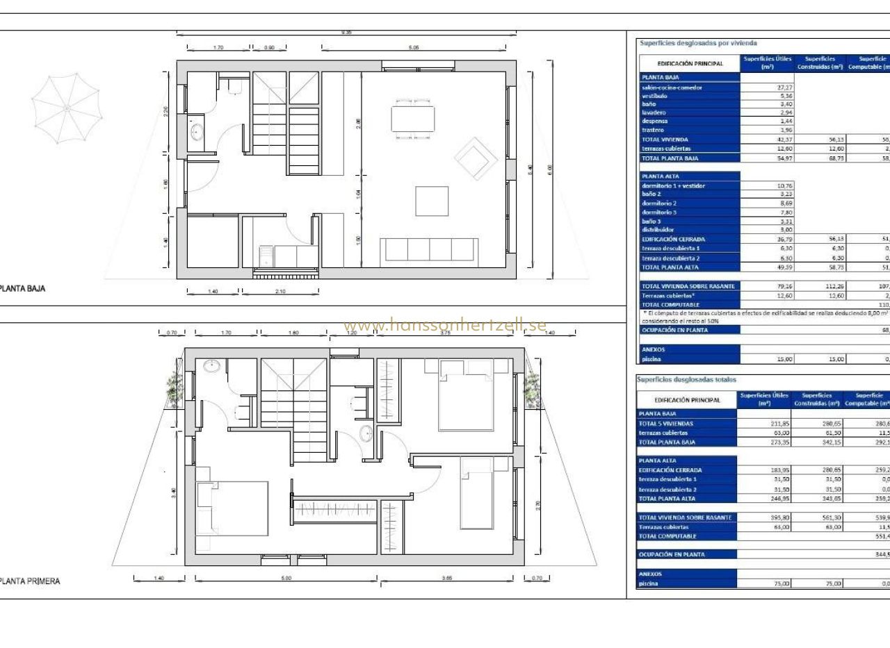
Modern New Build Villas in Finestrat with Private Pool Near Benidorm Prime Location in Finestrat-Costa Blanca Discover this exclusive development of just 5 contemporary villas located in Finestrat, one of the most desirable residential areas on the Costa Blanca. Perfectly positioned between the charming village of Finestrat and the vibrant city of Benidorm, these homes offer a peaceful environment surrounded by nature while remaining close to all amenities. The area is known for its stunning views of the Mediterranean Sea and surrounding mountains, as well as its proximity to golf courses, shopping centers and leisure facilities. Finestrat combines traditional Spanish charm with modern infrastructure, making it ideal for both permanent living and holiday homes. Its elevated position ensures open views and a sense of privacy, while the coast is just a short drive away. Contemporary Villas Designed for Comfort and Style These elegant villas feature a modern minimalist design with clean lines, large panoramic windows and spacious private terraces. Each property is distributed over two floors and offers 3 bedrooms and 3 bathrooms, including a master bedroom with a walk in wardrobe and access to a private terrace. An additional dressing room provides extra convenience and storage. The open plan layout enhances natural light and creates a seamless connection between indoor and outdoor living spaces, perfect for enjoying the Mediterranean lifestyle all year round. Private Outdoor Spaces and Premium Features Each villa sits on a landscaped private plot and includes a private swimming pool, ideal for relaxing and entertaining. The properties also offer private parking for two vehicles within the plot. High quality finishes and modern installations ensure maximum comfort and energy efficiency. Features include aerothermal hot water systems, split air conditioning units with individual control in each room, and designer interior and exterior lighting. The kitchen comes fully furnished and equipped with ceramic hob, extractor hood and oven. Energy Efficient Homes with Modern Technology Built with premium materials and holding an energy rating A, these villas are designed to reduce energy consumption while maintaining a high level of comfort. The combination of insulation, efficient systems and quality construction ensures a sustainable and cost effective home. Excellent Connectivity and Nearby Points of Interest Benidorm beaches 5 km Finestrat village 3 km Puig Campana Golf 2 km La Marina Shopping Center 4 km Port of Benidorm 6 km Alicante Airport 55 km Your Ideal Mediterranean Home Awaits Whether you are looking for a stylish permanent residence, a holiday retreat or a smart investment, these modern villas in Finestrat offer location, quality and lifestyle in one package. Contact us today to receive more information or to arrange a viewing and secure your new home on the Costa Blanca.
Digital viewings make it possible to conveniently meet the broker and get a viewing of the home directly on the mobile.