Lägenhet · Nybyggnad Villajoyosa · Ref. GNR-59199

543.000€
Pris per m2 4.451€/m2

Lägenhet · Nybyggnad Villajoyosa · Ref. GNR-59199

Beskrivning

Pris per m2 4.451€/m2
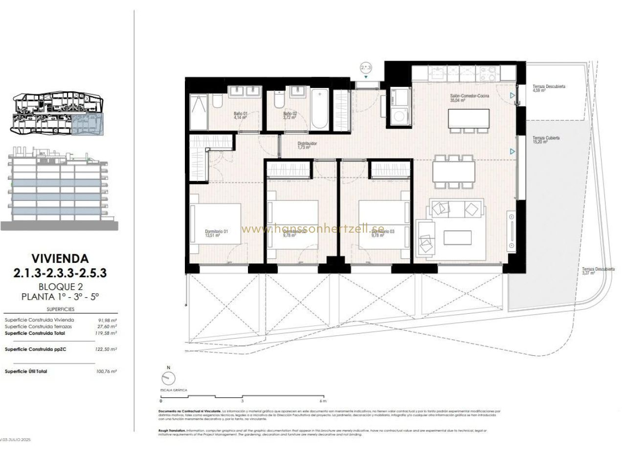
Byggd 122m2
Sovrum 3
Badrum 2
Pool Ja

Lyxig resort i Villajoyosa - ett paradis vid havet Upptäck ett unikt bostadskomplex i Playa del Torres Detta exklusiva nya bostadsområde ligger mindre än 5 minuters promenad från den fridfulla Playa del Torres i Villajoyosa och erbjuder 164 moderna lägenheter och takvåningar med 1 till 3 sovrum. Området är utformat för att ge den ultimata livsstilen och kombinerar lyx, avkoppling och oöverträffade bekvämligheter i en lugn medelhavsmiljö. Exceptionella bekvämligheter för alla boende Hjärtat i detta projekt är Roof Top, som ligger på taket till Block 2. Detta genomtänkt utformade utrymme inkluderar en fantastisk pool med panoramautsikt, Chill-out-områden, en grillzon, ett område för flera användningsområden och ett lusthus, perfekt för att umgås eller varva ner. Social lounge inomhus, perfekt för gourmetmiddagar med vänner eller som ett samarbetsutrymme. För vattenälskare har komplexet funktioner: Pooler i tropisk stil med tillgång till stranden. En uppvärmd pool med simbana, en barnpool och en uppvärmd jacuzzi. Fitnessentusiaster kan njuta av: Inomhus- och utomhusgym, komplett med en calisthenics-krets. En putting green och minigolf för fritidsaktiviteter. Moderna hem med premiumfunktioner Varje lägenhet är utrustad med: Ett fullt utrustat kök med högkvalitativa vitvaror, inklusive kylskåp, mikrovågsugn, ugn, diskmaskin och en integrerad tvättmaskin/torktumlare. Energieffektiva aerotermiska system för varmvatten och luftkonditionering. Radiant golvvärme i badrummen. Högkvalitativa PVC-fönster med värmeisolering och dubbla glasrutor. Privat parkering och förvaringsutrymme för extra bekvämlighet. Byggnaden har energiklassificering A, vilket garanterar maximal effektivitet och hållbarhet. Perfekt läge i Villajoyosa Detta komplex ligger inbäddat i Playa del Torres och erbjuder en fridfull tillflyktsort omgiven av naturlig skönhet. Strandens kristallklara vatten och turkosa nyanser ger en idyllisk bakgrund för avkoppling. Anläggningen är bekvämt belägen: 2 km från Villajoyosas charmiga stadskärna. 10 km från Benidorm, med sitt pulserande nattliv och shopping. 30 minuter med bil till Alicante flygplats. Villajoyosa, känt för sina färgglada hus och sin rika historia, är fortfarande en äkta medelhavspärla. Denna stad, som nyligen utsågs till ”Best Secret Destination in Europe 2024” av European Best Destinations, blandar tradition, naturskönhet och lugn. Ditt drömhem väntar i Playa del Torres Upplev det bästa av det moderna livet i ett naturparadis. Med sitt utmärkta läge, lyxiga bekvämligheter och moderna design är detta projekt perfekt för dem som söker ett hem vid havet. Kontakta oss idag för att planera ett besök och göra denna fantastiska fastighet till din!

Egenskaper

Sovrum: 3
Badrum: 2
Byggd: 122m2
Pool : Ja
Kök : 0
Gated
Number of Parking Spaces: 1
Near Schools
Near Commercial Center
Location: Coastal, Urbanisation
Views: Sea
Double Bedrooms: 3
Beach: 400 Meters
Terrace: 17 Msq.
Parking - Space
Useable Build Space: 91 Msq.
Storage / Trastero
Communal Pool
Gym
Jacuzzi
Solarium: Yes
Elevator/Lift

Vi erbjuder digitala visningar!

Digitala visningar gör det möjligt att träffa mäklaren på ett bekvämt sätt och få en visning av bostaden direkt i mobilen.

Plats

Gör en förfrågan

Responsable del tratamiento: Hansson & Hertzell Invest S.L., Finalidad del tratamiento: Gestión y control de los servicios ofrecidos a través de la página Web de Servicios inmobiliarios, Envío de información a traves de newsletter y otros, Legitimación: Por consentimiento, Destinatarios: No se cederan los datos, salvo para elaborar contabilidad, Derechos de las personas interesadas: Acceder, rectificar y suprimir los datos, solicitar la portabilidad de los mismos, oponerse al tratamiento y solicitar la limitación de éste, Procedencia de los datos: El Propio interesado, Información Adicional: Puede consultarse la información adicional y detallada sobre protección de datos Aquí.
POWERED BY HABENO
WhatsApp
Ring mig om denna fastighet